Villa Vånga
 
Radhus österläge
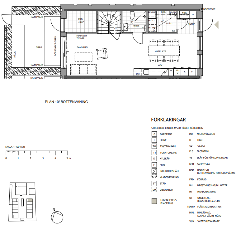
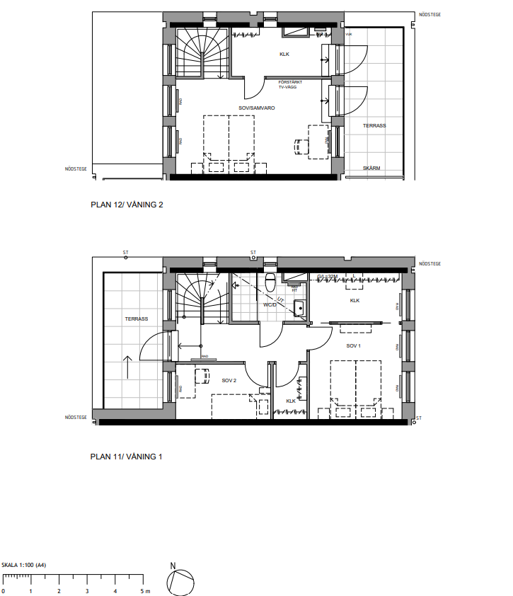
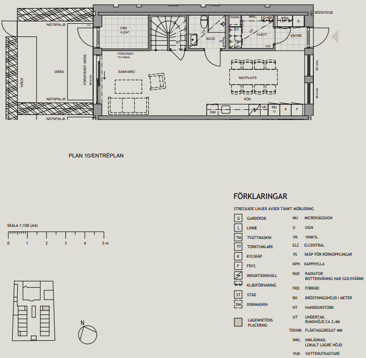
Radhus C-1001
Brf Villa Vånga

Radhus C-1001

Pris: 10 995 000

Avgift: 3 676 kr/mån

Boarea: 127 m2

Rum: 4 RK

Våningsplan: 3

Rätt till ändringar förbehålles

Takhöjd: 2,5 m om inte annat anges

Vill du lämna en intresseanmälan?
Kontakta Croisette.