Villa Vånga
 
Radhus västerläge
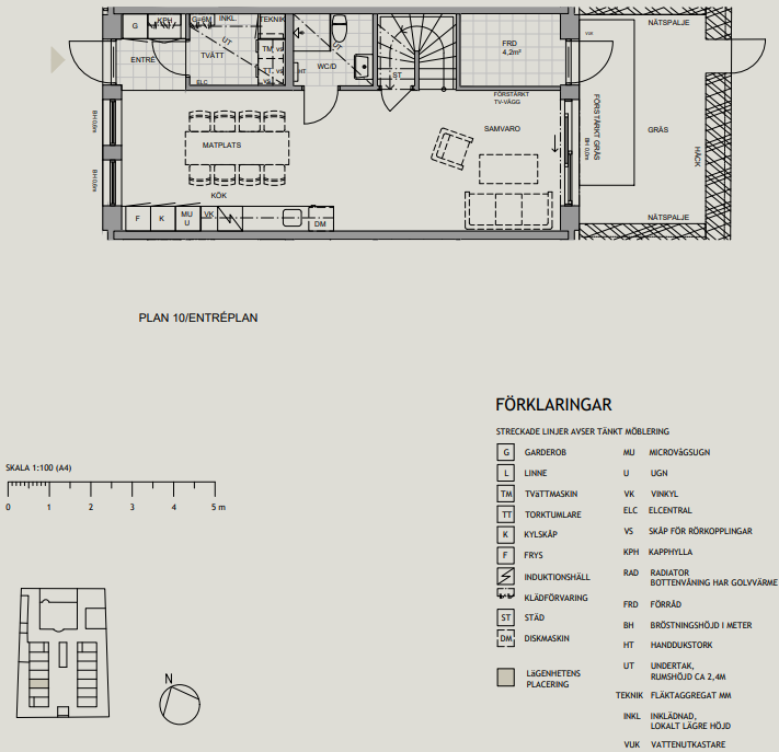
Radhus D-1005
Brf Villa Vånga

Radhus D-1005

Pris: 11 995 000

Avgift: 3 980 kr/mån

Boarea: 140 m2

Rum: 5 RK

Våningsplan: 3

Rätt till ändringar förbehålles

Takhöjd: 2,5 m om inte annat anges

Vill du lämna en intresseanmälan?
Kontakta Croisette.