Pris: 11 995 000
Avgift: 3 980 kr/mån
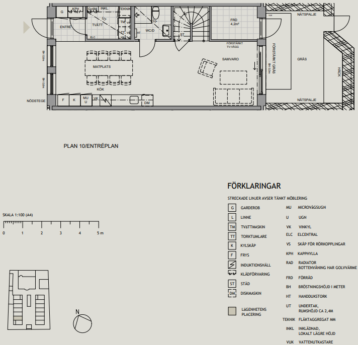
Boarea: 140 m2
Rum: 5 RK
Våningsplan: 3
Rätt till ändringar förbehålles
Takhöjd: 2,5 m om inte annat anges